Реверсивный рубильник АВР (устройство автоматического ввода резерва) SHIQ5-1000 4P - АтомСнаб
Подбор оборудования именно под Ваш проект
Комплектация 100+ вариантов оборудования
Прямые поставки с завода изготовителя

Реверсивный рубильник АВР (устройство автоматического ввода резерва) SHIQ5-1000 4P

В наличии

Артикул

Картинки2
Номинальное напр., В

Габаритные Размеры (Д;Ш;В; мм)

Влажность, %

Номинальная коммутационная способность

Кратковременное отклонение номинального тока, кA

Номинальное рабочее напряжение управления Vs, В

Номинальный ток (А)

Номинальная отключающая способность

Класс защиты

Кол-во полюсов переключателя

Номинальный предел мощности КЗ, кА

Вес брутто (кг)

Номинальное импульсное напряжение Uimp, кВ

Ток термической стойкости Ith, A

Класс защиты обмотки

Длина (мм)

Ширина (мм)

Время переключения I-II или II-I, сек

Высота (мм)

Масса, кг

Номинальное напряжение изоляции Ui, В

Детальное описание товара2

Реверсивный рубильник АВР (устройство автоматического ввода резерва) SHIQ5-1000 4P

Рубильник реверсивный TSS SHIQ5 1000А с моторным приводом — Компактный рубильник с встроенным моторным приводом переключения. Предназначен для работы с внешним контроллером ввода резерва. Самый компактный вариант для своего номинального рабочего тока. Обладает высокой надёжностью благодаря долговечному покрытию контактов и прочному стальному механизму. Обеспечивает:

    Безыскровое переключение нагрузки;
    Полное отключение нагрузки (в «нулевом положении» рубильника);
    Возможность ручного переключения;


Режим работы рубильника переключается установкой ключа рубильника в положение AUTO (автоматический) или MANUAL (ручной).

В режиме AUTO (автоматический):
Работа рубильника управляется встроенной платой управления согласно внешним командам. Плата подаёт команды мотору с редуктором, управляющим замыканием и размыканием контактов. При превышении температуры электромотора более 110 градусов Цельсия (ввиду перегрузки мотора или превышения номинального тока) рубильник будет разомкнут. Если в режиме Auto переключить рубильник ручкой переключения, то через 60 секунд рубильник вернётся к исходному положению.

В режиме MANUAL (ручной):
Переключения возможны только ручкой переключения. Плата и механизм управления отключены

При работах по обслуживанию и ремонту систем:
Переключить рубильник в режим MANUAL и зафиксировать ручку механическим фиксатором, вытянув её. При этом рубильник будет заблокирован от случайного переключения.

ПРЕИМУЩЕСТВА РЕВЕРСИВНОГО РУБИЛЬНИКА TSS SHIQ5 1000А

Свойства

Преимущества

Контакты (1) выполнены из меди с промышленным покрытием для лучшей электропроводимости и предотвращения окисления контактов

Срок службы дольше на 45%. Нет необходимости обслуживания контактов. Ниже нагрев контактов.

Надёжный привод с редуктором со стальными цилиндрическими прямозубыми шестернями (2), металлическими тягами (4) и ограничителем хода с буферной пружиной (5)

Срок службы дольше на 45%
Надёжность срабатывания выше на 50%

Термозащита двигателя (3) от перегрева с неопреновой изоляцией, мотор устойчив к температурам до 1100С

Вероятность ранних отказов меньше на 30%

Блок управления производится с высокой точностью на беспылевом производственном участке (6)

Снижение уровня дефектов до уровня менее 1 дефекта на 10,000 образцов

Контакты выполнены из меди с промышленным серебряным покрытием, что обеспечивает хорошую электропроводимость    Привод с металлическими шестернями    Данный тип рубильников имеет термозащиту двигателя, защищает двигатель от перегрева
Ограничитель хода с буферной пружиной    Надежный металлический привод контактной группы    Блок управления производится с высокой точностью на беспылевом производственном участке, что обеспечивает его высочайшее качество

УСЛОВИЯ ПРИМЕНЕНИЯ

    Окружающая температура: -20…+45°C. Средняя температура должна быть не более +35°C в течение 24 часов
    Относительная влажность: не более 50% при +40°C без конденсации влаги, при более низких температурах допускается более высокая влажность, например, при температуре +20°С
    Относительная влажность допускается 90%, однако, следует учитывать выпадение конденсата при изменении температуры
    Высота над уровнем моря: не более 2000 м, при большей высоте расчетная сила тока будет меньшей
    Место установки A должно быть без сильных вибраций или толчков, без воздействия паров и газов, которые могут повлечь коррозию металлических частей или повреждение изоляции, пылезащищенным, без воздействия взвешенных токопроводящих частиц, взрывчатых или других опасных веществ или сильного электромагнитного поля
    Допустимый угол наклона рубильника ±23°
    Класс защиты: IP20
    Условия хранения: от -30 до 70°C, в сухом помещении без воздействия паров коррозионно-активных веществ
    Гарантия 12 месяцев

ОРГАНЫ УПРАВЛЕНИЯ

Органы управления реверсивным рубильником   

ПОДКЛЮЧЕНИЕ РУБИЛЬНИКА

Подключение рубильника   

НАЗНАЧЕНИЕ КОНТАКТОВ СИГНАЛЬНЫХ ТЕРМИНАЛОВ РУБИЛЬНИКА

Назначение контактов сигнальных терминалов рубильника   

ТИПОВАЯ СХЕМА СОЕДИНЕНИЙ РЕВЕРСИВНОГО РУБИЛЬНИКА

Типовая схема соединений реверсивного рубильника   

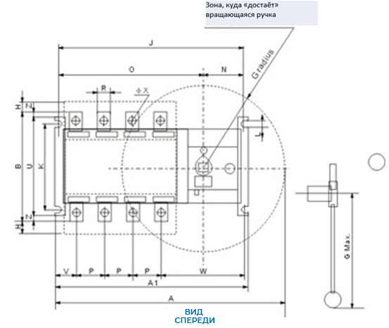
РАЗМЕРЫ РЕВЕРСИВНОГО РУБИЛЬНИКА TSS SHIQ5 1000А

Реверсивный Рубильник Вид спереди    Реверсивный Рубильник Вид со стороны моторного привода   

РАЗМЕРЫ РЕВЕРСИВНЫХ РУБИЛЬНИКОВ

Модель

Артикул 1С

А

А1

B

B1

C

E

G

H

J

K

L

N

O

P

R

S

T

U

V

W

Y

Y1

Z

TSS SHIQ5 1000А

019359

1007

633

330

250

370

321

470

65

609

220

11

85

524

120

63

65

7

250

60,5

188,5

107

249

40